Description des boucles CVC

Sommaire  Précédent  Suivant

Une boucle CVC permet de modéliser des systèmes de distribution d'air et d'eau, tels que des systèmes de ventilation mécanique, des systèmes de distribution d'eau chaude et froide, ainsi que des systèmes de distribution d'eau par condenseur. Une boucle comprend deux sous-boucles: l'une dédiée à la demande et l'autre dédiée à la production.

Dans sa configuration la plus simple, une sous-boucle comprend une entrée (tuyau ou conduit) qui est connectée en série à une sortie via un certain nombre de composants. L'entrée de chaque sous-boucle est reliée à la sortie de l'autre sous-boucle :

03000001FR

En général, la sous-boucle de demande correspond à la partie d'une boucle dont l'énergie est extraite d'un système, tandis que la sous-boucle de production correspond à la partie d'une boucle dans laquelle le système apporte de l'énergie.

Par conséquent, les sous-boucles de production comprennent des équipements, tels que des chaudières dans le cas de système de chauffage ou des groupes froids dans le cas de systèmes de refroidissement. La sous-boucle de production d'un système d'air contient des éléments comme des batteries chaudes et froides. Elle inclut également des équipements de circulation, tels que des pompes et des ventilateurs.

De même, la sous-boucle de demande d'un système de chauffage comprend des éléments comme des batteries chaudes d'air conditionné, ou des équipements de zone comme des radiateurs à eau chaude, des batteries chaudes de ventilo-convecteur, un chauffage au sol, etc. Une sous-boucle de demande d'eau glacée contient des équipements tels que des batteries froides d'air conditionné, des poutres froides de zone, des plafonds rafraîchissants, etc. Enfin, la sous-boucle d'une distribution d'air inclut généralement des équipements de distribution d'air de zone comme des régulateurs de débit d'air VAV, etc.

Il existe trois types de boucle:

les boucles générateur (boucles d'eau chaude et glacée),
les boucles condenseur
les distributions d'air.

 

Les sous-boucles générateur et condenseur intègrent également un diviseur et un mélangeur de flux qui permettent de définir différentes branches parallèles. Normalement, chacune de ces branches parallèles comprend une connexion d'entrée provenant du diviseur, un composant et une connexion de sortie vers le mélangeur. Une branche parallèle de dérivation (sans composant) est également présente pour garantir la continuité du flux.

03000002FR

 

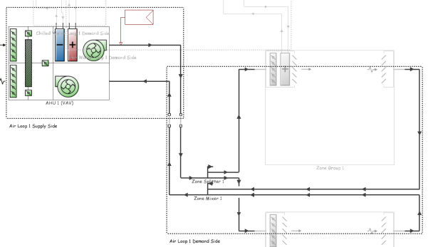
En revanche, les sous-boucles de production des distributions d'air à flux unique comprennent une seule branche avec une connexion d'entrée reliée à différents composants en série (dont un mélangeur d'air extérieur, des ventilateurs, des batteries froides, des batteries chaudes, etc.) qui sont eux-mêmes reliés à une connexion de sortie.Les sous-boucles de production d'une distribution d'air ne contiennent aucun diviseur ou mélangeur de flux.Les sous-boucles de demande d'une distribution d'air à flux unique intègrent des connexions de soufflage vers les équipements de distribution d'air de zone et les connexions de retour d'air de zone. Les sous-boucles de demande des distributions d'air sont également dotées d'un diviseur et d'un mélangeur de flux permettant de connecter les équipements de distribution d'air situés dans plusieurs zones aux circuits de soufflage et de retour :

03000003FR

 

Dans DesignBuilder CVC, le mélangeur d'air extérieur et le ventilateur sont intégrés dans une centrale de traitement d'air (CTA). Le cas échéant, ces CTA peuvent également contenir d'autres composants comme un récupérateur de chaleur, des batteries chaudes, des batteries froides, des humidificateurs et des batteries de pré traitement d'air extérieur :

03000004_601x347

Dans les systèmes à flux parallèles, les sous-boucles de soufflage d'air sont équipées de deux connexions de sortie, une pour le flux chaud et une pour le flux froid. Elles disposent également d'un diviseur permettant de séparer le flux d'air entre les conduits chaud et froid :

03000005FR

Dans les distributions d'air à flux parallèles, les sous-boucles de demande contiennent deux connexions d'entrée pour les flux chaud et froid, lesquelles peuvent être ensuite reliées à des unités terminales de distribution d'air à flux parallèles via des diviseurs d'air et un mélangeur.

Neuf boucles pré définies sont disponibles dans DesignBuilder CVC : quatre distributions d'air, quatre boucles générateur et une boucle condenseur.