Distribution d'air froid/chaud unitaire

Sommaire  Précédent  Suivant

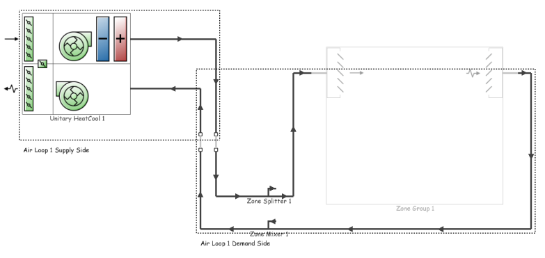
Cette distribution d'air est similaire à la première, mais, au lieu d'une CTA générique, la sous-boucle de production contient un conditionneur d'air packagé équipé de batteries chaude et froide à détente directe, ce dernier ne requiert pas la définition de boucles générateur ou condenseur.

L'image suivante montre une distribution d'air flux unique connectée à un groupe de zone.

 

03000008_783x371