Distribution d'air par pompe à chaleur unitaire

Sommaire  Précédent  Suivant

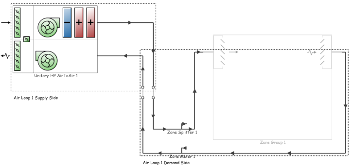
Cette distribution d'air est similaire à la première, mais, au lieu d'une CTA générique, la sous-boucle de production contient une pompe à chaleur unitaire packagée équipée de batteries chaude et froide à détente directe, ainsi que d'une batterie chaude électrique supplémentaire, cette pompe ne requiert pas la définition de boucles générateur ou condenseur.

L'image suivante montre une distribution d'air flux unique connectée à un groupe de zone.

 

03000007_726x346